Un’Oasi Urbana nel Cuore di Firenze
Nel cuore di Firenze esiste uno spazio senza confini, per persone senza etichette.
Una location situata in situato in Borgo Pinti dove la bellezza dell’architettura incontra il calore dell’inclusività. Qui ogni dettaglio racconta una storia di accoglienza: dai colori vivaci che stimolano l’ispirazione, agli angoli relax progettati per il benessere di tutti. È un mix perfetto di stile contemporaneo e vibrazioni positive.
Orti Dipinti è uno spazio urbano rigenerato, un “giardino segreto”, perfetto per eventi di ogni tipo, protetto da mura storiche dove il verde non è solo cornice, ma sostanza. Nato dal recupero di un’ex pista di atletica, questo spazio incarna un’estetica autentica, dove il design contemporaneo incontra la natura in un dialogo costante tra storia e innovazione.
Design Nomade e Modularità
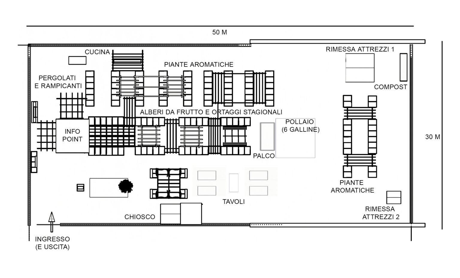
Il layout degli Orti Dipinti non è un’entità statica, ma un organismo vivo che riflette un approccio “nomade” all’abitare. Grazie alla visione dell’architetto Giacomo Salizzoni, ogni elemento è concepito per essere flessibile: dalle aiuole rialzate ai sistemi di seduta, tutto è modulare e riconfigurabile. Questa struttura permette di modellare lo spazio intorno alle necessità, garantendo layout fluidi che si adattano con naturalezza a diverse tipologie di eventi, mantenendo sempre un’atmosfera intima e di grande respiro.
L’estetica poggia su una scelta materica consapevole: l’uso sistematico di pallet di recupero e legno rigenerato definisce un’applicazione pratica del “riuso creativo”. Questi materiali poveri, nobilitati dal design, creano un contrasto affascinante con le architetture storiche del quartiere, offrendo quinte sceniche modulari che possono essere riposizionate per creare aree riservate o ampi spazi aperti.
La modularità spaziale è ulteriormente esaltata dall’uso di contenitori mobili per la semina e aiuole rialzate, che non solo facilitano l’ergonomia del lavoro agricolo per i volontari e i soggetti con disabilità, ma fungono anche da quinte sceniche modulari che possono essere riposizionate per creare aree riservate o spazi aperti a seconda delle necessità di un evento privato o aziendale.
Versatilità e Polifunzionalità dello Spazio per Eventi
La natura polifunzionale degli Orti Dipinti li rende una location d’eccellenza per una vasta gamma di attività che richiedono un’atmosfera ricercata ma informale. Lo spazio si presta a trasformazioni repentine, garantendo una versatilità che è difficile riscontrare in contesti storici più rigidi.
- Team Building e Progetti Didattici: Nel settore del corporate entertainment, offriamo soluzioni che integrano il verde con la formazione. Le attività di team building coinvolgono i partecipanti in percorsi di agricoltura urbana e consapevolezza ambientale. Il lavoro manuale collettivo diventa una metafora potente per l’organizzazione aziendale, promuovendo la collaborazione orizzontale e la responsabilità condivisa.
- Matrimoni e Celebrazioni: L’Estetica Country-Vintage in Città. Per chi sogna un matrimonio “green-chic”, gli Orti Dipinti offrono un “lusso della semplicità”. La combinazione di arredi in pallet, piante mediterranee e il fascino della vecchia pista crea uno sfondo unico per cerimonie simboliche e servizi fotografici. È una location di nicchia per chi desidera un’atmosfera bucolica senza rinunciare ai vantaggi del centro città.
- Yoga e Mindfulness: Le nostre sessioni di yoga e pilates, per adulti e bambini, godono di un’esclusività e un silenzio protetto unici a Firenze. Il giardino diventa un rifugio dove la pratica è favorita dalle essenze aromatiche e dalla bellezza intrinseca del design botanico, offrendo un’esperienza sensoriale profonda.
- Eventi e Party Privati: Dai DJ set agli aperitivi serali, la location si trasforma in un’arena verde suggestiva, ideale per feste private e sfilate di moda che cercano un contesto fuori dagli schemi.
Scegliere Orti Dipinti significa immergersi in un’esperienza dove ogni dettaglio racconta una storia di rinascita, cura e bellezza collettiva.
Vuoi aiutarci a far crescere questo polmone sociale?
Ogni contributo è un seme che piantiamo insieme per rendere Firenze più verde e inclusiva.









